Каталог товаров
ЗОНД пробоотборный
Раздел: Ручные пробоотборники
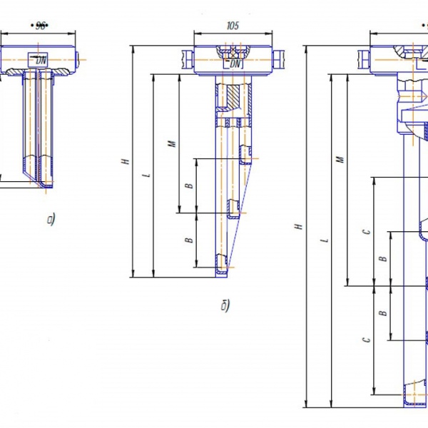
Зонд пробоотборный - для отбора проб товарной нефти, транспортируемой по трубопроводам с условным диаметром DN от 40 до 1200 мм и давлением от 0,2 до 6,3 МПа и разработанный в соответствии ГОСТ 2517-2012 и входящий в состав автоматического пробоотборника «ПРОБА-1М» и «МАВИК-НТ».
ЗОНД ПРОБООТБОРНЫЙ предназначен для отбора проб товарной нефти, транспортируемой по трубопроводам с условным диаметром DN от 40 до 1200 мм и давлением от 0,2 до 6,3 МПа и разработанный в соответствии ГОСТ 2517-2012. и входящий в состав автоматического пробоотборника «ПРОБА-1М» и «МАВИК-НТ» .
проба-1м, проба-1м, проба-1м, проба-1м, проба-1м, проба-1м, проба-1м
| Обозначение | Н | L | М | В | С | Масса, кг,изделия |
|---|---|---|---|---|---|---|
| Зонд пробоотборный с одной трубкой-40 | 136 | 100 | 90 | - | - | 3,98 |
| Зонд пробоотборный с одной трубкой-50 | 143 | 107 | 97 | - | - | 4,12 |
| Зонд пробоотборный с одной трубкой-65 | 151 | 115 | 105 | - | - | 4,15 |
| Зонд пробоотборный с одной трубкой-80 | 159 | 123 | 113 | - | - | 4,18 |
| Зонд пробоотборный с одной трубкой-100 | 168 | 132 | 122 | - | - | 4,21 |
| Зонд пробоотборный с тремя трубками-150 | 243 | 207 | 150 | 47 | - | 4,41 |
| Зонд пробоотборный с тремя трубками-200 | 291 | 255 | 180 | 65 | - | 4,56 |
| Зонд пробоотборный с тремя трубками-250 | 334 | 298 | 207 | 81 | - | 4,65 |
| Зонд пробоотборный с тремя трубками-300 | 375 | 339 | 232 | 97 | - | 4,8 |
| Зонд пробоотборный с тремя трубками-350 | 418 | 382 | 259 | 113 | - | 4,87 |
| Зонд пробоотборный с тремя трубками-400 | 456 | 420 | 283 | 127 | - | 5,3 |
| Зонд пробоотборный с пятью трубкам-500 | 603 | 567 | 345 | 101 | 202 | 7,26 |
| Зонд пробоотборный с пятью трубкам-600 | 693 | 657 | 395 | 121 | 242 | 7,64 |
| Зонд пробоотборный с пятью трубкам-700 | 772 | 736 | 440 | 138 | 276 | 7,83 |
| Зонд пробоотборный с пятью трубкам-800 | 862 | 826 | 490 | 158 | 316 | 8,32 |
| Зонд пробоотборный с пятью трубкам-1000 | 1042 | 1006 | 590 | 198 | 396 | 8,44 |
| Зонд пробоотборный с пятью трубкам-1200 | 1220 | 1184 | 690 | 237 | 474 | 8,97 |
Пример условного обозначения при заказе Зонда пробоотборного,
устанавливаемого на трубопровод с условным проходом DN 300:
«Зонд пробоотборный DN300»
Комплектация
С этим товаром покупают